Ивантеевский Завод
металлоизделий
и конструкций
г. Москва
+7(495) 104-80-35
Шумозащитный кожух для генератора 320-550 кВт (У)
Шумозащитный кожух для генератора 320-550 кВт (У)
Заказать

Шумозащитный кожух для генератора 320-550 кВт (У)

Артикул:
013260
Гарантия, срок (мес):
12
909 523 руб.
Характеристики:
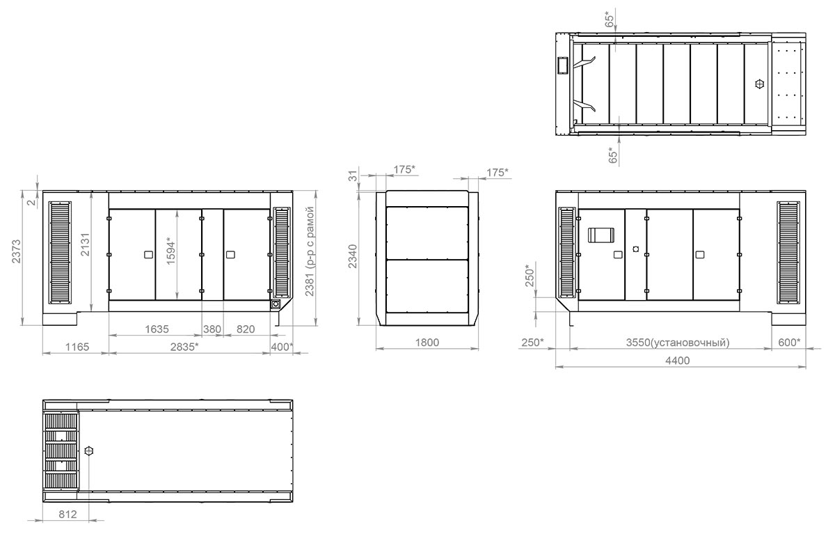
Масса, кг
1150
Длина (мм)
4400
Ширина (мм)
1800
Высота (мм)
2390
Габаритные Размеры (Д;Ш;В; мм)
4400х1800х2390
Описание

Шумозащитный кожух предназначен для защиты ДГУ от осадков, обеспечения безопасности работы и уменьшения уровня шума, исходящего от работающей ДГУ. Кожух изготавливается по раме дизель-генераторной установки из стального листа толщиной 1,5-2 мм с порошковым покрытием и дополнительным  шумозащитным покрытием. Для проведения технического обслуживания кожух имеет дверцы с удобным замком. Напротив щита собственных нужд в створке двери кожуха имеется окно для визуального контроля за работой оборудования. Генераторную установку в шумопоглащающем кожухе можно эксплуатировать как в помещении, так и на улице при температуре окружающей среды от -25°С до +40°С.

Оставаясь на сайте, вы соглашаетесь на использование файлов куки и передачей данных службам веб-аналитики
Принять